34.31 m2
Zgrada C: PP 2
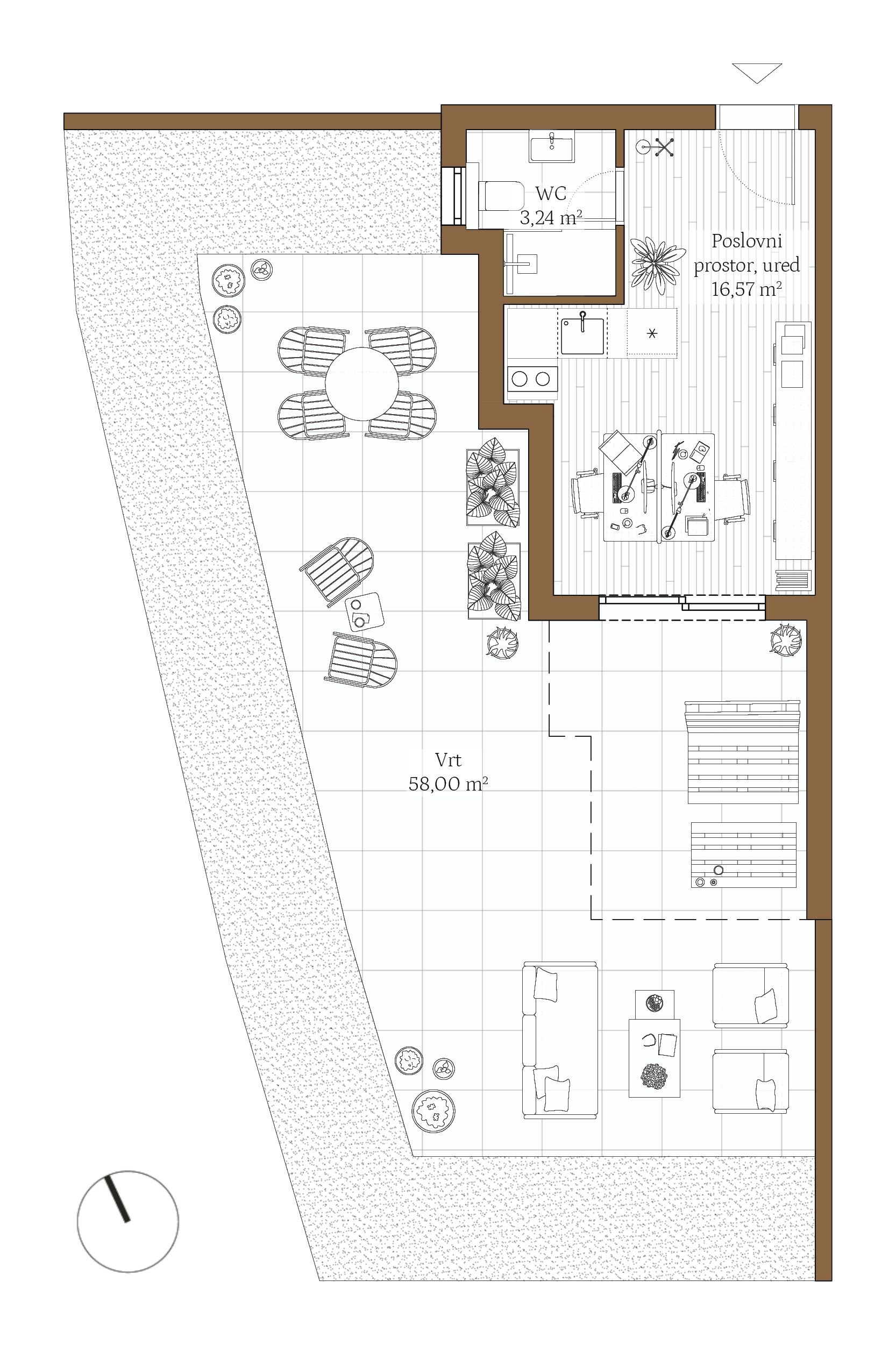
Površine:
Ured: 16.57 m2
WC: 3.24 m2
Vrt: 58.00 m2
P: 77.81 m2
Pk: 34.31 m2
Ugrađena oprema i materijali:
Svaki stan opremljen je s pažnjom prema detaljima i visokim standardima gradnje.
U pogledu opreme, odabrani su renomirani proizvođači koji jamče dugotrajnost, funkcionalnost i estetiku:
- Klimatizacijski uređaji: Daikin - vrhunska učinkovitost i udobnost u svakom prostoru.
- Sanitarije: Hansgrohe i Geberit - poznati po modernom dizajnu i pouzdanosti.
- Podno grijanje: U kupaonicama je instalirano podno grijanje za dodatnu udobnost tijekom zimskih mjeseci.
- Keramika: Premium talijanska keramika.
- Podovi: Parket od hrasta, I kategorije.
- Stolarija: Vanjska stolarija izrađena od aluminija - dugotrajna, elegantna i energetski učinkovita.
