Loading...
Skip to Content

 

















116.72 m2

Zgrada C: Stan 1

Površine:

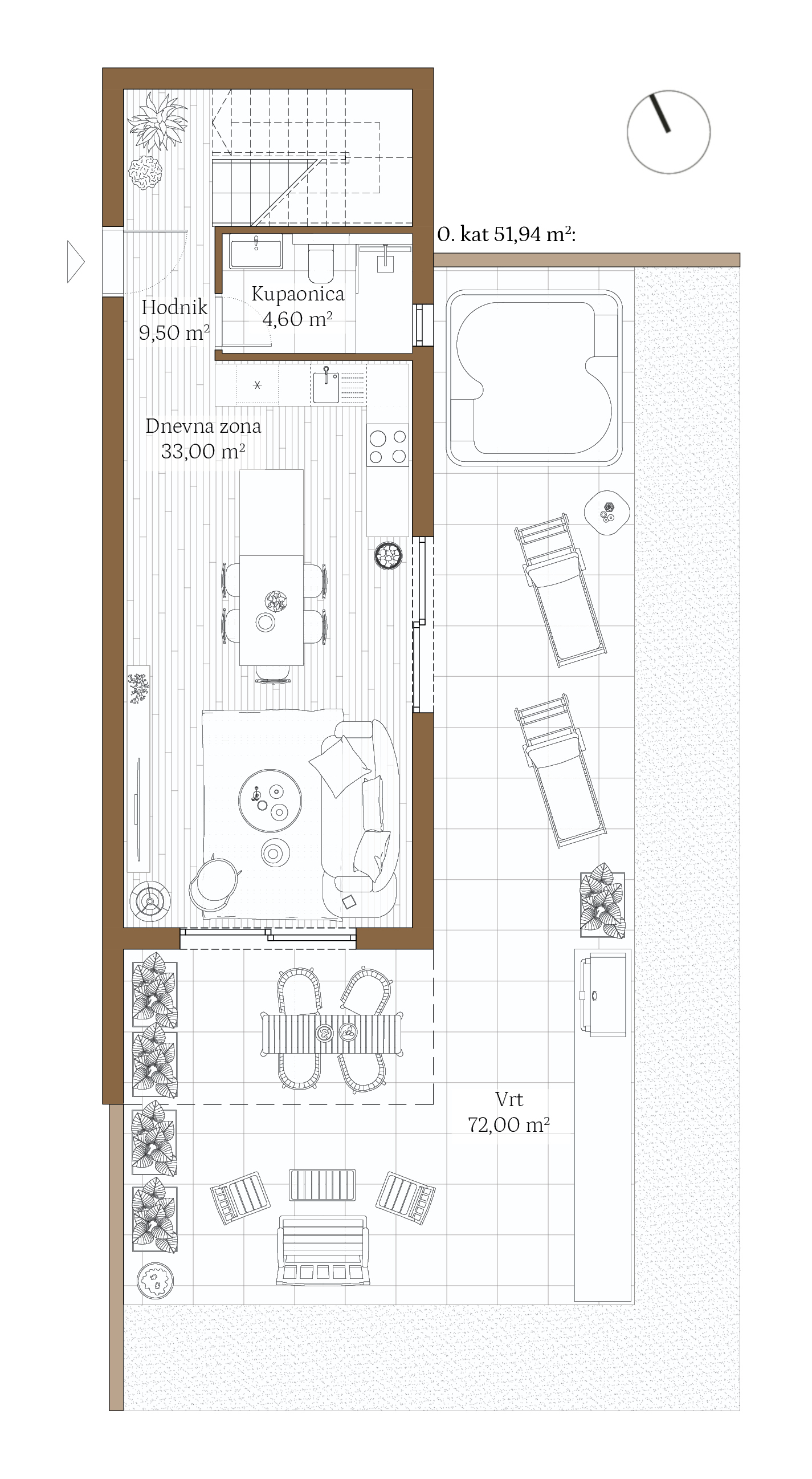
Hodnik: 9.50 m2

Kupaonica: 4.60 m2

Dnevna zona: 33.00 m2

Stubište: 8.00 m2

Hodnik: 7.10 m2

Kupaonica: 5.10 m2

Spavaća: 7.80 m2

Spavaća: 7.50 m2

Dnevna zona: 11.28 m2

Terasa: 9.68 m2

Vrt: 72.00 m2

P: 175.56 m2

Pk: 116.72 m2





PDF

Tlocrt stana:

Ugrađena oprema i materijali:


Svaki stan opremljen je s pažnjom prema detaljima i visokim standardima gradnje.
U pogledu opreme, odabrani su renomirani proizvođači koji jamče dugotrajnost, funkcionalnost i estetiku:

- Klimatizacijski uređaji: Daikin - vrhunska učinkovitost i udobnost u svakom prostoru.
- Sanitarije: Hansgrohe i Geberit - poznati po modernom dizajnu i pouzdanosti.
- Podno grijanje: U kupaonicama je instalirano podno grijanje za dodatnu udobnost tijekom zimskih mjeseci.
- Keramika: Premium talijanska keramika.
- Podovi: Parket od hrasta, I kategorije.
- Stolarija: Vanjska stolarija izrađena od aluminija - dugotrajna, elegantna i energetski učinkovita.

Virtualna tura:




3D tlocrt:




Prikaz enterijera: